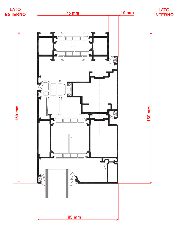
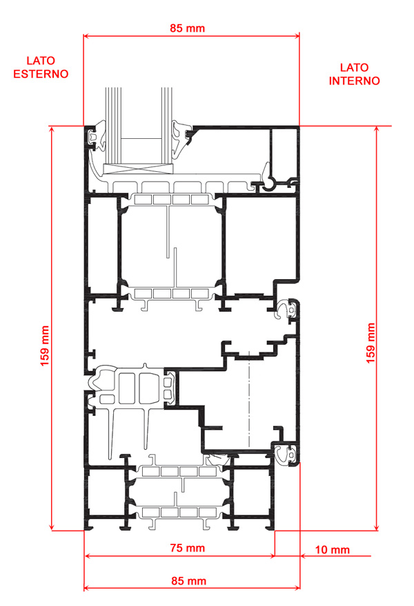
Wicona 75 Serie Bilico  

La Serie a Bilico WICONA 75 del Progetto Era è una linea di serramenti in alluminio senza alcuna sagomatura evidente, con l'anta a bilico,realizzbile come bilico verticale o bilico orrizzontale in tal modo si ottiene un ingonbro minimo sia interno che esterno quando la finestra è aperta. Naturalmente la serie Bilico può essere realizzara solamente ad un'anta.

NODO LATERALE SUPERIORE NODO LATERALE INFERIORE
NODO INFERIORE NODO SUPERIORE

ESEMPIO DI FINESTRE A BILICO VERTICALE

ESEMPIO DI FINESTRA A BILICO ORRIZZONTALE

Torna su

Google

 

 

GATTINO ALLUMINIO DI GATTINO ELIO - VIA BRA 26A - 12030 CAVALLERMAGGIORE (CUNEO) - PIEMONTE - ITALIA

PARTITA IVA 02864350042

TELEFONO 0172 381162 - INTERNET: E-MAIL commerciale@gattinoalluminio.it

Copyright / Privacy